Castle 13

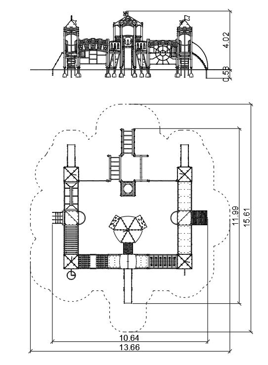
Urządzenie z aplikacjami zamkowymi, na drewnianych słupach o przekroju kwadratowym. Podesty pokryte powłoką antypoślizgową, barierki wzmocnione rurkami stalowymi na górze i na dole. Zwężki ze spawanych rur stalowych.

Kod produktu
0111040
Grupa wiekowa
3-12 lata
Liczba użytkowników
90
Inkluzywność
Nie

Długość
10,64 m
Szerokość
11,99 m
Wysokość
4,02 m
Obszar strefy bezpieczeństwa
150 m2
Wysokość upadku
2,10 m
Wymiar strefy
13,66 x 15,61 m m

Masz pytania?

Napisz do nas