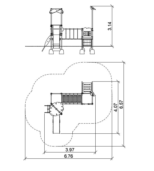
Urządzenie na słupach okrągłych z obejmami aluminiowymi. Podesty pokryte powłoką antypoślizgową wsparte na spawanej ramie stalowej. Barierki pokryte drukiem UV.
Szczegóły
Wymiary urządzenia
Do pobrania
Pobierz Kartę Techniczną produktuWyświetl plik DWGZobacz rzut 2D
Dziękujemy za wypełnienie formularza. Twoja aplikacja została pomyślnie przesłana. Wkrótce skontaktujemy się z Tobą przy użyciu preferowanej metody kontaktu.